Pompe per vuoto con lubrificazione e cartuccia disoleatrice - 25-35 mc/h
Caratteristiche
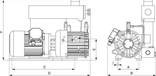
Le pompe lubrificate Gamavuoto da 25 e 35 mc/h sono caratterizzate da una grande semplicità costruttiva, da una esecuzione robusta e compatta e con un semplice ma efficiente sistema di raffreddamento ad aria. Nella serie “G” il motore elettrico è collegato al corpo pompa tramite un giunto elastico e questo consente l’utilizzo di svariate tipologie di motori e vi è inoltre un filtro separatore dell’olio a cartuccia intercambiabile posto sullo scarico che contribuisce a ridurre praticamente quasi a zero emissioni di fumi. Munite di silenziatori che abbattono il livello di rumore, queste pompe sono disponibili anche con motore monofase a richiesta. Richiedono una minima esigenza di manutenzione siccome la lubrificazione a ricircolo permette il cambio dell’olio e il rabbocco in funzione dei tempi effettivi d’utilizzo.
Installazione
Effettuare il collegamento al circuito del vuoto. Predisporre il collegamento elettrico al motore e verificare il corretto senso di rotazione della pompa. ATTENZIONE! il senso contrario di rotazione del motore elettrico può determinare la rottura del gruppo aspirante.

Art. | Volume aspiratoVacuum flowVakuum-Durchsatz | Press. finaleFinal pressure ABSEndddruck | VelocitàRpmGeschwindigkeit | Potenza motoreMotor powerMotorleistung | PesoWeightGewicht | A | B | C | D | E | F | G | I | Viscosità olioOil viscosityÖlviskosität | |||
---|---|---|---|---|---|---|---|---|---|---|---|---|---|---|---|---|---|
50 Hz Mc/h |
60 Hz Mc/h |
mbar/ass | 50 Hz g/min |
60 Hz g/min |
50 Hz Kw |
60 Hz Kw |
kg | ||||||||||
GPOL 25/GD | 25 | 30 | 65 | 1450 | 1700 | 0,75 | 0,90 | 33 | 130 | 290 | 385 | 470 | 130 | 280 | 3/4” | 8,5 | ISO 100 |
GPOL 30/GD | 30 | 36 | 65 | 1450 | 1700 | 0,75 | 0,90 | 35 | 130 | 290 | 385 | 490 | 130 | 280 | 3/4” | 8,5 | |
GPOL 35/GD | 35 | 42 | 65 | 1450 | 1700 | 1,10 | 1,30 | 37 | 130 | 290 | 385 | 510 | 130 | 280 | 3/4” | 8,5 |