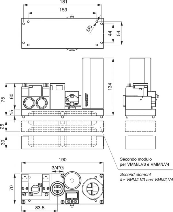
Generatori di vuoto multistadio mod. VMMV - VMLV
I nuovi generatori serie “VMMV - VMLV” sono realizzati in alluminio composti da 1 a 2 moduli pratici e leggeri. Ogni modulo é composto da 1 o 2 file di cartucce e possono essere assemblati in modo semplice e veloce, con portate comprese tra i 192,8 e 1207 l/min mantenendo inalterato il valore di vuoto massimo raggiungibile. In questa versione sono presenti le elettrovalvole a due vie 24 Volt DC per l’alimentazione dell’aria e per il contro-soffio regolabile che agevola il distacco delle ventose, il vacuostato digitale con connettore M8 e una valvola unidirezionale che permette il mantenimento del vuoto anche in caso di assenza improvvisa di corrente elettrica.
Disponibili con due tipi di cartuccia:
- Alto Vuoto (95%) mod. VMMV
- Basso consumo mod. VMLV

Lubrificazione Lubrication Schmierung | non necessaria unnecessary nicht notwendig |
---|---|
Temperatura Temperature Temperatur | ambiente ambient -10°C to + 50°C |
Pressione Pressure Druck | 2 ÷ 8 bar |
Tempo di risposta Responce time Reaktionszeit | 5 - 15 ms |
Ciclo di lavoro bobina Coil duty cycle Spulen-Arbeitszyklus | ED 100% |
Potenza Power Leistung | da 1 a 2,5 W (DC) 3 VA (AC) 1 to 2,5 W (DC) 3 VA (AC) 1 bis 2,5 W (DC) 3 VA (AC) |
Voltaggio Voltage Stromspannung | 12 - 24 V DC 24 - 115 - 230 VAC (altri voltaggi su richiesta) 12 - 24 V DC 24 - 115 - 230 VAC (other voltages on request) 12 - 24 V DC 24 - 115 - 230 VAC (andere Spannungen auf Anfrage) |
Variazione di voltaggio Voltage variation Spannungsänderung | ± 10% |
Classe di isolamento bobina Coil Insulation class Spulenisolationsklasse | F |
Grado di protezione Degrees of protection Schutzgrade | IP 65 (secondo EN 60529) IP 65 (according to EN 60529) IP 65 (gemäß EN 60529) |
Connettore Electrical connection Elektrische Verbindung | Amp 2,8 x 0,5 |
Costruzione bobina Coil construction Elektrische Verbindung | secondo EN 60204.1 e VDE 0580 according to EN 60204.1 and VDE 0580 gemäß EN 60201.1 und VDE 0580 |
Mod. | Bar | VuotoVacuumVakuum | PortataVacuum flowDurchsatz | ConsumoConsumptionVer-brauch |
---|---|---|---|---|
kPa | Nl/min | Nl/min | ||
VMMV1 | 2 | 41 | 217,1 | 70,3 |
3 | 77 | 262,7 | 94,3 | |
4 | 95 | 310,8 | 115,4 | |
5 | 94 | 307,1 | 136,4 | |
6 | 93 | 321,8 | 157,8 | |
7 | 91 | 338,3 | 177,8 | |
8 | 90 | 356,6 | 198,6 | |
VMMV2 | 2 | 41 | 394,7 | 140,6 |
3 | 77 | 477,7 | 188,6 | |
4 | 95 | 565,0 | 230,8 | |
5 | 94 | 558,3 | 272,8 | |
6 | 93 | 585,0 | 315,6 | |
7 | 91 | 615,0 | 355,6 | |
8 | 90 | 648,3 | 397,2 | |
VMMV3 | 2 | 41 | 512,6 | 191,7 |
3 | 77 | 620,4 | 257,2 | |
4 | 95 | 733,8 | 314,8 | |
5 | 94 | 725,1 | 372,0 | |
6 | 93 | 759,8 | 430,3 | |
7 | 91 | 798,7 | 484,9 | |
8 | 90 | 842,0 | 541,7 | |
VMMV4 | 2 | 41 | 717,6 | 255,6 |
3 | 77 | 868,5 | 342,9 | |
4 | 95 | 1027,3 | 419,7 | |
5 | 94 | 1015,2 | 496,0 | |
6 | 93 | 1063,7 | 573,7 | |
7 | 91 | 1118,2 | 646,5 | |
8 | 90 | 1178,8 | 722,2 | |
Mod. | Bar | VuotoVacuumVakuum | PortataVacuum flowDurchsatz | ConsumoConsumptionVer-brauch |
kPa | Nl/min | Nl/min | ||
VMLV1 | 2 | 28 | 194,3 | 48,5 |
3 | 44 | 244,2 | 61,7 | |
4 | 59 | 284,2 | 76,2 | |
5 | 70 | 308,0 | 90,5 | |
6 | 75 | 323,4 | 104,5 | |
7 | 77 | 334,8 | 117,1 | |
8 | 78 | 345,2 | 128,8 | |
VMLV2 | 2 | 28 | 370,2 | 101,6 |
3 | 44 | 465,2 | 129,2 | |
4 | 59 | 541,3 | 159,7 | |
5 | 70 | 586,7 | 189,5 | |
6 | 75 | 616,0 | 219,1 | |
7 | 77 | 637,7 | 245,4 | |
8 | 78 | 657,6 | 269,8 | |
VMLV3 | 2 | 28 | 481,8 | 152,4 |
3 | 44 | 605,5 | 193,8 | |
4 | 59 | 704,6 | 239,5 | |
5 | 70 | 763,7 | 284,3 | |
6 | 75 | 801,8 | 328,6 | |
7 | 77 | 830,0 | 368,1 | |
8 | 78 | 855,9 | 404,8 | |
VMLV4 | 2 | 28 | 679,5 | 203,2 |
3 | 44 | 853,9 | 258,4 | |
4 | 59 | 993,6 | 319,4 | |
5 | 70 | 1076,9 | 379,1 | |
6 | 75 | 1130,8 | 438,1 | |
7 | 77 | 1170,5 | 490,8 | |
8 | 78 | 1207,1 | 539,7 |
- Generatori di vuoto multistadio mod. AVL 3 - 7
- Generatori di vuoto multistadio mod. AVL 90 - 180 - 240
- Generatori di vuoto multistadio mod. AVL 360 - 540
- Generatori di vuoto multistadio mod. AVL 720
- Generatori di vuoto multistadio mod. AVLD 4 - 8 - 12
- Generatori di vuoto multistadio mod. AVLD 16 - 32 - 48
- Generatori di vuoto multistadio mod. AVLD 64 - 96
- Generatori di vuoto multistadio mod. AVLD 128
- Generatori di vuoto multistadio mod. AVLH 5 - 10
- Generatori di vuoto multistadio mod. AVLM 6 - 12
- Generatori di vuoto multistadio mod. AVLM 24 - 30
- Generatori di vuoto multistadio mod. AVLM 36 - 42
- Generatori di vuoto multistadio generatori di vuoto modulari mod. AVLG
- Generatori di vuoto multistadio mod. GVML - GVLL
- Generatori di vuoto multistadio mod. VMM - VML
- Generatori di vuoto multistadio mod. VMMV - VMLV
- Generatori di vuoto multistadio mod. VMMST - VMLST