Filtri per vuoto a sifone
Questi filtri vengono utilizzati come ulteriore sicurezza, delle pompe per vuoto, quando l’aria in ingresso alle stesse contiene particolari impurità: liquidi e/o polveri.
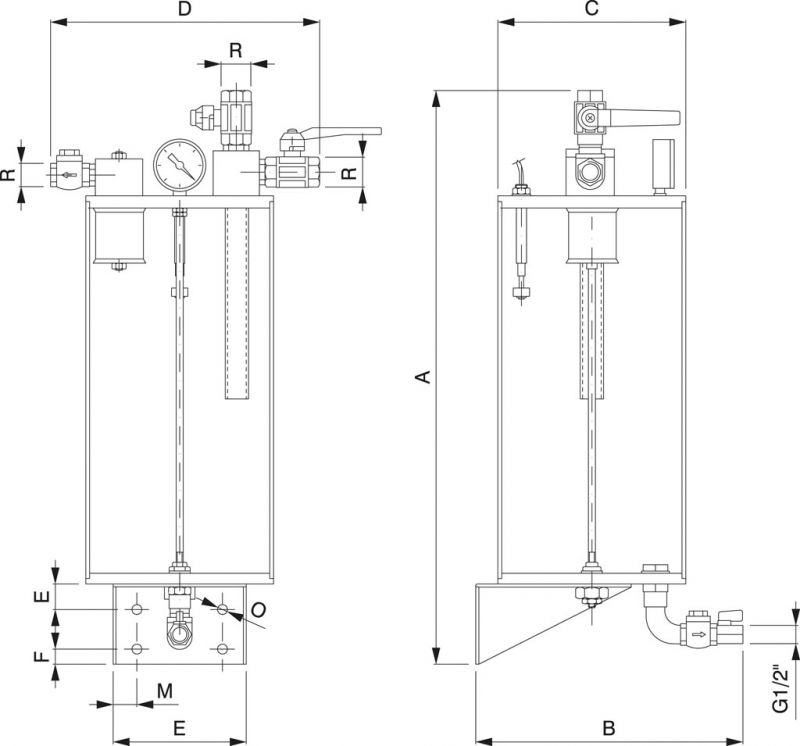
Sono composti da: un contenitore in plexiglass trasparente “ispezionabile”, cartuccia in rete d’acciaio inox con grado di filtraggio 60 micron, 2 rubinetti manuali a 2 vie, valvola di ritegno, vuotometro, interruttore magnetico di livello valvola di ritegno e rubinetto sullo scarico e staffa di fissaggio.
| Art. | A | B | Cø | D | R | E | F | M | O |
|---|---|---|---|---|---|---|---|---|---|
| FS 10 | 640 | 370 | 240 | 320 | 1" gas | 25 | 21,5 | 29,5 | 11 |
| FS 30 | 780 | 370 | 240 | 320 | 1" gas | 25 | 21,5 | 29,5 | 11 |
- Filtri per vuoto in policarbonato Serie FPP
- Cartuccia per filtri FPP
- Filtri per vuoto in policarbonato Serie FOT
- Cartuccia per filtri FOT
- Filtri per vuoto in plastica trasparente FAT 5
- Filtro per vuoto in linea serie FAL
- Filtri per vuoto in alluminio con vaschetta trasparente - Serie FAT
- Filtri per vuoto in alluminio con separatore di liquidi - Serie FAS 15
- Filtri per vuoto in alluminio - Serie FA
- Cartuccia per filtri FAT - FAS - FA
- Filtri per vuoto con apertura a ganci - Serie FB
- Cartuccia per filtri FB
- Filtri per vuoto a sifone
- Filtri per vuoto a bagno d'olio