Filtri per vuoto in alluminio - Serie FA
Questa serie di filtri con attacchi filettati è costruita con elementi in fusione di alluminio. Tutti i filtri sono muniti di cartuccia in acciaio inox. Grado di filtraggio da 40 a 100 micron. Temperatura d’esercizio da 0° a 90°C.
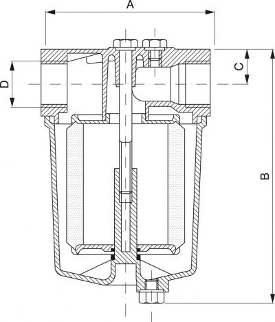
Montaggio, manutenzione e pulizia
Rispettare scrupolosamente la direzione del flusso, indicato confrecce sul filtro. Si possono installare in qualsiasi posizione, consigliamo però dimontare il filtro in posizione verticale, con la vaschetta rivoltaverso il basso facilitando il deposito delle impurità filtrate. Per la pulizia, svitare le viti sul coperchio, togliere la vaschetta,lavare accuratamente la cartuccia con gasolio o benzina e soffiare con aria compressa dall’interno verso l’esterno; montare il tuttoavendo cura di controllare che le guarnizioni siano integre al loroposto. Per i modelli privi di vite svitare la vaschetta con le mani, pulire come sopra descritto e rimontare stringendo moderatamentecon le mani.
| Art. | A | B | C | DØ |
|---|---|---|---|---|
| FA7-1/4 | 61 | 75 | 12,5 | 1/4" gas |
| FA7-3/8 | 61 | 75 | 12,5 | 3/8" gas |
| FA15 | 81 | 85 | 21 | 3/8" gas |
| FA18 | 81 | 117 | 21 | 1/2" gas |
| FA30 | 96 | 141 | 29 | 3/4" gas |
| FA35 | 120 | 175 | 29 | 1" gas |
| FA160 | 190 | 225 | 39 | 1 1/4" gas |
| FA200 | 190 | 225 | 39 | 1 1/2" gas |
| FA250 | 182 | 275 | 39 | 2" gas |
- Filtri per vuoto in policarbonato Serie FPP
- Cartuccia per filtri FPP
- Filtri per vuoto in policarbonato Serie FOT
- Cartuccia per filtri FOT
- Filtri per vuoto in plastica trasparente FAT 5
- Filtro per vuoto in linea serie FAL
- Filtri per vuoto in alluminio con vaschetta trasparente - Serie FAT
- Filtri per vuoto in alluminio con separatore di liquidi - Serie FAS 15
- Filtri per vuoto in alluminio - Serie FA
- Cartuccia per filtri FAT - FAS - FA
- Filtri per vuoto con apertura a ganci - Serie FB
- Cartuccia per filtri FB
- Filtri per vuoto a sifone
- Filtri per vuoto a bagno d'olio